Schleiferei und Stahlwaren Bohner









Year: 2010
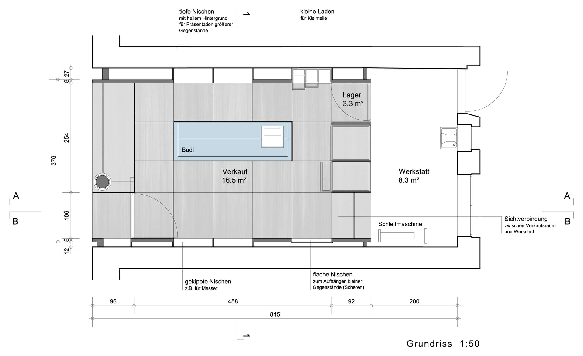
Function: Shop, steelware and grinding shop
Client: Manfred Bohner
Type of order: Direct order, 2010
Project status: Study
Model: Klaus Oberwalder









Year: 2010
Function: Shop, steelware and grinding shop
Client: Manfred Bohner
Type of order: Direct order, 2010
Project status: Study
Model: Klaus Oberwalder